Aula Gerión

Asociación para la defensa del Patrimonio Histórico - Sanlúcar de Barrameda (Cádiz)

 

 

Conjunto Monumental

  Casa Arizón

    (Siglos XVII y XVIII)

 

Es un importante conjunto de edificaciones que ocupa casi toda una manzana (5.329 m2) de la Sanlúcar Americanista. Este Conjunto Monumental domina visual y volumétricamente todo el espacio urbano conformado en el antiguo barrio de la Balsa, entre las calles Divina Pastora y Banda Playa, en la linde con el Centro Histórico. Perteneciente a una notable familia de cargadores a Indias, el inmueble fue declarado Bien de Interés Cultural en 2001. En 1989 fue adquirido a la familia Arizón por una empresa madrileña, DAINURSA, que en 1989 pasó a denominarse CASA GRANDE ARIZÓN, S.A., hallándose desde entonces en estado de incomprensible abandono y progresivo deterioro.

La Casa de Arizón responde a la tipología propia de residencias pertenecientes a los grandes mercaderes, que se especializaron en el tráfico comercial con América. Aunque en Sanlúcar existen todavía algunas muestras de este tipo de arquitectura civil, este palacio reviste una importancia excepcional por ser el único conjunto completo, que engloba todos los elementos específicos de la doble vertiente residencial y comercial que distinguieron a estos edificios.

Este inmueble supone un testimonio decisivo para conocer el importante protagonismo que tuvo Sanlúcar en el comercio americano y la Carrera de Indias, así como las intensas relaciones mercantiles que se establecieron entre Andalucía y Cataluña, ya que la familia Arizón, oriunda de Irlanda, se instaló primero en Cataluña, asentándose algunos de sus miembros más tarde en Sanlúcar -en el Barrio y Puerto de la Balsa, en pleno auge durante los siglos XVII y XVIII-, desde donde mantuvieron intensos contactos comerciales con sus parientes catalanes, a través de la costa mediterránea (importación de productos catalanes, como aguardiente o frutos secos; inversión en la industria naval catalana para asegurar el abastecimiento de la ruta Barcelona-Cádiz-América). Este importante tráfico mercantil facilitó la incorporación del comercio catalán en el movimiento comercial con las colonias americanas.

 

 

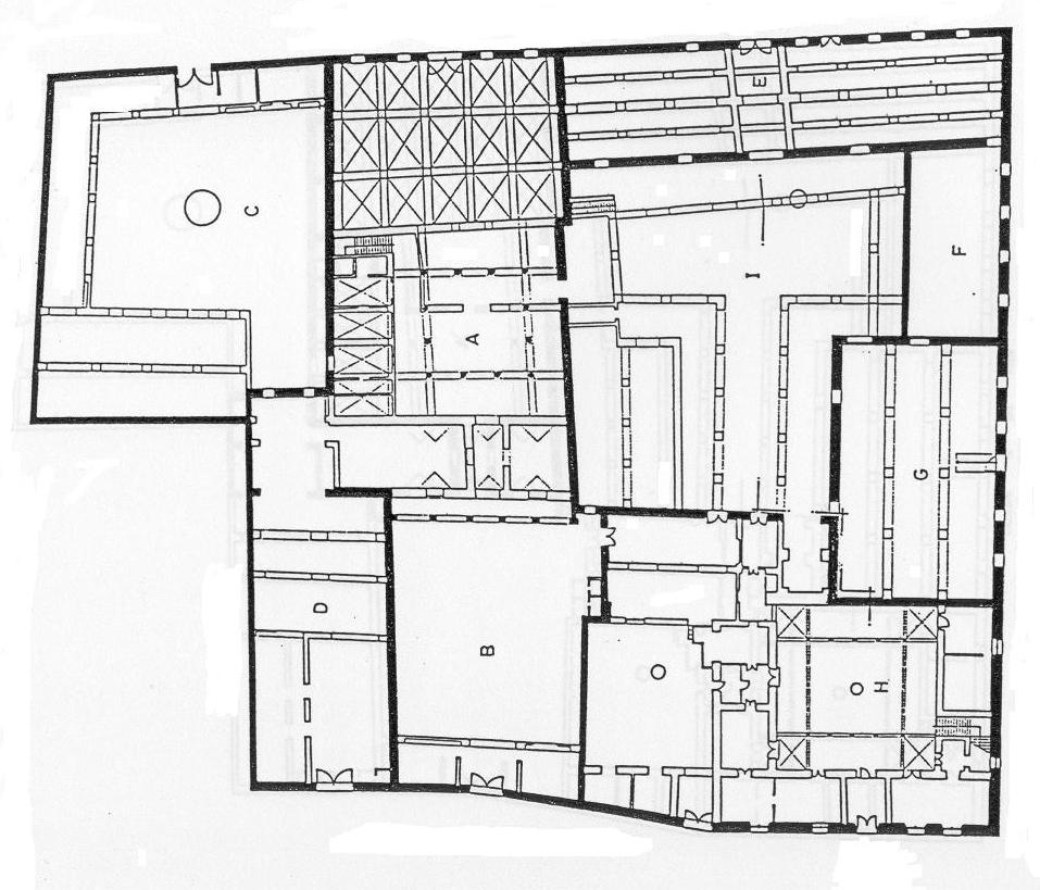
Planta de Casa Arizón - Sectores (vista desde calle Divina Pastora)

Obras en ejecución: hotel, 52 pisos y 11 locales comerciales

      

A - Casa y Almacenes del siglo XVII > pisos y locales

B - Apeadero. Siglo XVII  > patio y pisos

C - Caballerizas Siglo XVII > equipamiento

D - Almacenes y bodegas > pisos y locales

E - Almacenes del siglo XVIII > pisos y locales

F - Bodega de las Tinajas > pisos y locales

G - Bodega del siglo XVIII > pisos y locales

H - Casa del siglo XVIII > hotel con 30 habitaciones

 I - Patio y zona de almacenaje - Galería subterránea > sin uso previsto.

 

 

                  Pinchar para ampliar

 

 

 

 

 

 

Ver Proyecto completo (sólo han facilitado las plantas)

 

El amplísimo conjunto se organizó en base a un núcleo residencial originario del siglo XVII (Sector A), al que se accede, por la calle Divina Pastora, a través de la puerta del Apeadero (Sector B) construida en sillería pétrea y coronada por el escudo de armas de la familia Arizón, el cual aparece alojado en un sobrio frontón curvo que remata la portada.

Considerada como la zona de mayor valor histórico y arquitectónico se localiza la casa  del siglo XVII (Sector A), adquirida por los Arizón a su llegada a Sanlúcar. Se distribuye en dos plantas de altura y en torno a un patio central columnado con doce columnas de mármol blanco y acentuado éntasis. Destaca la doble galería de fachada, de gran belleza y majestuosidad y única en Sanlúcar, que está compuesta por una doble logia con arcos apuntados en planta baja y escarzanos en planta superior. En la primera crujía de esta casa, en planta baja, se cubre con interesante bóveda de cañón con lunetos, localizándose debajo de esta dependencia y sótano de gran interés histórico y constructivo.

De gran interés constructivo eran los almacenes del siglo XVII, contigüos a la casa del mismo siglo, que abrían fachada a la Calle Banda Playa (antiguamente, en la orilla del mar, facilitando el trasiego de los productos hasta el puerto cercano). Este almacén del siglo XVII estaba constituido por una sucesión de arquerías sobre pilares, cubriéndose cada tramo con bóvedas de arista construidas en piedra ostionera. Lamentablemente esta interesantísima cubierta se desplomó de forma extraña y fugaz.

La existencia del resto de dependencias destinadas a bodegas, almacenes de aceites, tonelería, pozas para los graneros, caballerizas, sótanos, galerías subterráneas y demás espacios propios del tráfico comercial, influyeron decisivamente la disposición estructural de la finca. Estas zonas ofrecen un gran interés desde la perspectiva de la Arquitectura Industrial, así como desde el punto de vista de la comprensión histórica de toda la finca. Todos estos espacios industriales se están perdiendo con la edificación de los 52 pisos y 11 locales comerciales.

En el XVIII se construyeron las nuevas zonas de almacenes (1728) del Callejón de los Félix (llamado así por el nombre del primer Arizón que llegó a Sanlúcar en 1709) y la zona residencial principal (1721), integrándose al mismo tiempo en la finca una callejuela que cruzaba el solar (1730), que fue cedida por el Ayuntamiento y que separaba las dos zonas residenciales-funcionales de los Arizón. Este callejón ponía en comunicación, hasta entonces, la calle Divina Pastora con calle Banda de la Playa.

La casa dieciochesca presenta una síntesis de influencias, reflejo de la confluencia de movimientos estéticos que se produce en la Sanlúcar del momento. A la directriz tradicional sevillana, derivada de la condición de Sanlúcar como antepuerto de la capital hispalense, se suma la inevitable inclusión en el tráfico comercial de la bahía de Cádiz, adoptándose elementos tan gaditanos como la torre-mirador o la decoración geométrica de lacería incisa (motivos vegetales y aspas) en el mortero bicolor, almagra y blanco, en el exterior de la torre y ático, donde se combina de forma efectiva la tradición mudéjar y barroca.

Estilísticamente, las dos zonas residenciales adoptan las trazas propias de las casas-palacio del barroco sevillano, constatándose esta tipología en la sobriedad de fachadas, altura de la edificación en dos plantas (casa doble acorde a la climatología de la zona) y ático final; así como en la presencia de azotea, jardín y patio central, con columnas de mármol y brocal de pozo en el centro, alrededor del cual se organizan las cuatro crujías preferentes.

En la fachada de la casa del XVIII, guardapolvos y tornapuntas forjadas confieren al edificio todo su bajoandalucismo. La disposición de carceleras, balcón central y cierros verifican la sobriedad y simetría características del barroco civil de tradición sevillana, donde sobresale el clasicismo de pilastras, molduras y friso de la puerta de entrada.

Del interior merecen destacarse el espacioso zaguán con banco lateral corrido y solería de ladrillo a sardinel; el portón de madera americana ricamente tallado en su cara interna; el brocal del pozo octogonal en mármol blanco y probable origen genovés; el mármol rojo de las columnas del patio y escalera con barandilla salomónica; la bóveda esquifada con yeserías de cartón recortado con que se cubre ésta; y las formas conventuales de portajes y celosías.

         Pinchar para ampliar

       

        La torre mirador

Orientado al mar, a modo de vigía sobre la desembocadura del Guadalquivir, para controlar la salida y llegada de las flotas ultramarinas, sobresale por encima del tejado la torre-mirador, elemento específico de las casas de cargadores a Indias, que induce a la configuración de paisajes urbanos muy peculiares. Estilísticamente coincide con la desnudez herreriana derivada de la arquitectura seiscentista. Del "tipo de silla", su esbeltez acentúa la verticalidad del edificio.

Cuenta la tradición que desde este mirador se arrojó uno de los miembros de la familia Arizón en el momento de divisar cómo uno de sus navíos, procedente de las Indias y cargado de plata americana, se hundió irremediablemente en la barra del río Guadalquivir, ante la mirada de asombro e impotente de su fletador.

 

         

          Oratorio (siglo XVIII)

En la planta alta de la casa del siglo XVIII se sitúa un precioso oratorio abovedado, que está pintado al fresco en su totalidad con un programa iconográfico de signo mariano (querubines, guirnaldas flora­les, símbolos de la letanía, águilas, el Espíritu Santo, corona celestial y lirios de espinas), todo en rojo, azul y dorado, con ritmo rococó, que recuerdan las pinturas de la iglesia de San Jorge de Sanlúcar, templo que también fue favorecido por los mecenas de la Casa Arizón.

 

 

 

 

Los Arizón fundaron una de las más importantes compañías comerciales de la época, siendo tan destacada su actividad económica que llegaron a prestar a Felipe V varias naves de su flota y los almacenes sanluqueños fueron cedidos a la Corona por un tiempo con todos sus beneficios. Sobresalieron también como terratenientes y Jacinto Salvador de Arizón obtuvo el título de Marqués de Casa Arizón (1739), siendo uno de los 75 nobles matriculados en la Carrera de Indias.

 

El Conjunto Monumental Casa Arizón de Sanlúcar es un testigo insustituible para comprender las relaciones comerciales del eje Cataluña-Andalucía-América. Se trata de las dos residencias y los edificios industriales de la compañía mercantil más importante de Sanlúcar de Barrameda (puerta de América) y una de las más relevantes de Andalucía. A través de sus casas, almacenes y bodegas podríamos conocer hoy al detalle –si nos lo dejaran en pie y se rehabilitara como merece- el apasionante mundo de una gran compañía comercial, las funciones mercantiles y la formas de vida aristocrático-mercantiles de los siglos XVII y XVIII. Sin embargo, en estos espacios históricos se están construyendo ya nada menos que 52 pisos y 11 locales comerciales, con sus correspondientes subdivisiones. Se está eliminando por completo todas las unidades espaciales de estas casas y almacenes que componen la finca, perdiéndose para siempre un eslabón fundamental de la historia de Andalucía. 

 

La familia Arizón jugó un indudable protagonismo en la cooperación entre el comercio andaluz y catalán a mediados del siglo XVIII, participando directamente en el desarrollo de la industria naval catalana, para asegurar que sus las mercancías –vino, aguardiente y aceite, sobre todo, además de trigo, avellanas, etc.- llegaran con garantías a Sanlúcar, desde donde se reexpedía a los puertos americanos.

De procedencia irlandesa, los Arizón se asentaron primero en el puerto de Blanes y otra rama de la familia pasó a Sanlúcar en el siglo XVII. Los Arizón gaditanos nunca perdieron el contacto con sus parientes residentes en tierras catalanas. Es más, consolidaron sus lazos mediante inversiones millonarias en frutos agrícolas y aguardientes del Principado y en el armamento de buques construidos en las playas de Maresme, entre otros lugares.

 
El vino del actual Marco de Jerez y los aguardientes catalanes fueron los principales productos, además del aceite, que se guardaron en las varias bodegas y almacenes del Conjunto Monumental Arizón de Salúcar para ser reenviados al Nuevo Mundo. Esas mismas bodegas y almacenes que ahora nos quieren fragmentar en 52 pisitos y locales comerciales.
 

Sucesivamente, Felipe, Jacinto, Cristóbal, Diego, Salvador y Teresa Arizón fletaron sus propios barcos, muchas veces participados con otros industriales catalanes.

Asimismo, los miembros de la familia Arizón destacaron como importantes mecenas de las artes sanluqueñas: el primer marqués de Casa Arizón terminó a su costa la urbanización de la Plaza de la Ribera (actual plaza del Cabildo), reconstruyó el puente del Arroyo de San Juan, ayudó a las obras del convento de carmelitas descalzos y legó importantes sumas a la Basílica de la Caridad, Colegio de San Jorge y carmelitas descalzas.

 

Varias leyendas han surgido alrededor de esta casa y su familia. Algunas basadas en hecho reales como el procesamiento de Diego de Arizón por haber asesinado a su esposa (1736), la sanluqueña Margarita Serquera (que según cuenta la leyenda, fue emparedada en esta casa), y a su mayordomo, Juan Peix, por motivos de adulterio, ingresando prisionero en el castillo de San Sebastián de Cádiz. El Rey lo indultó a cambio de la indemnización de 60.000 pesos, cantidad que fue destinada a las obras del Palacio Real de Madrid. Arrepentido, don Diego hizo donación de su fortuna a varios conventos sanluqueños. También benefició a la iglesia de La Victoria y legó una manda testamentaria para reconstruir la capilla y altar de la cárcel de Sanlúcar. Aún hoy existe la creencia de la aparición del espíritu de la esposa asesinada, la dama blanca, que deambula por la casa y el torreón durante las noches de luna llena.

 


 

Bibliografía:

Arbeteta Mira, Letizia: "Las alas de Ícaro" (apuntes sobre una familia sanluqueña), El Pliego del Ateneo, nº 2, 4, 5 y 7. Sanlúcar de Barrameda, 1989-90

Gómez Díaz-Franzón, Ana: "Las casas de cargadores a Indias. El modelo de la Casa Arizón", en Actas de Encuentro Sanlúcar de Barrameda en la corriente de la Ilustración, IES Francisco Pacheco,1995

Gómez Díaz-Franzón, Ana: Guía histórico-artística de Sanlúcar de Barrameda. ASHEA, 2003 (3ª ed.)

Gómez Díaz-Franzón, Ana: "Casa del Marqués de Arizón", en Suplemento Cultural de El Semanal, nº 6, 1988

Gómez Díaz-Franzón, Ana: "Los fantasmas de Arizón", en Las Piletas, nº 1

Martínez Shaw, Carlos: Cataluña en la carrera de Indias (1680-1756). Ed. Crítica, 1981

Velázquez Gaztelu, Juan Pedro: Catálogo de todas las personas ilustres y notables de esta ciudad de Sanlúcar [1760]. ASEHA, 1996

 


Elementos no estructurales integrantes e inseparables del B.I.C. Casa Arizón

Todo sobre el Conjunto Monumental Casa Arizón


Actualizado 14/11/09


 

Volver